Montréal (Mercier/Hochelaga-Maisonneuve) H1W3K7
Appartement | MLS: 28508826
Découvrez les Résidences Charbonneau, un projet locatif moderne et bien situé dans Hochelaga. Ces logements offrent un cadre de vie confortable et fonctionnel avec des plafonds de plus de 14 pieds, parfaitement adapté à ceux qui recherchent la commodité et la qualité. Profitez d'espaces lumineux, de finitions soignées, et d'un emplacement central, près des transports, commerces et autres services essentiels. Une adresse qui combine praticité, confort et accessibilité pour un quotidien harmonieux.
* Studios, 3 ½, 4 ½ et 5 ½ disponibles
* Occupation à partir du 1er juillet 2026
* Immeuble neuf offrant un style de vie moderne et confortable
* Plafonds de plus de 14 pieds pour un volume et une luminosité exceptionnels
* Murs de brique intérieure préservés, ajoutant un charme industriel et une touche d'authenticité
* Emplacement recherché au coeur d'Hochelaga, près des commerces, services et transports
* Finitions soignées et matériaux de qualité
* Soyez parmi les premiers à habiter le plus bel immeuble locatif du secteur !
Inclus : Eau chaude, électricité, internet et électroménagers
Exclus : Stationnement : 265$/mois, Rangement : 50$/mois
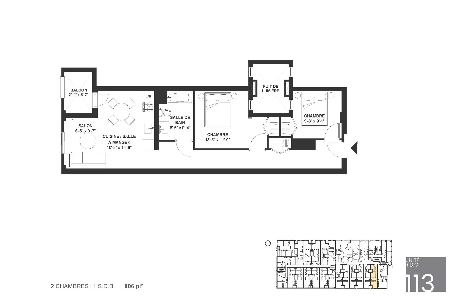
| Chambre | Dimensions | Niveau | Revêtement |
|---|---|---|---|
| Chambre à coucher | 9.3 x 9.1 P | Rez-de-chaussée | |
| Cuisine | 10.8 x 14.8 P | Rez-de-chaussée | |
| Salon | 6.5 x 9.7 P | Rez-de-chaussée | |
| Salle de bains | 6.6 x 9.4 P | Rez-de-chaussée | |
| Chambre à coucher | 13.8 x 11.0 P | Rez-de-chaussée |
| Restrictions/Permissions | Animaux permis sous conditions |
|---|---|
| Système d'égouts | Municipal |
| Approvisionnement en eau | Municipalité |
| Services disponibles | Salle d'exercice |
| Équipement disponible | Semi-meublé |