Les Coteaux J7X1J5
Appartement | MLS: 10686156
Charmant logement lumineux avec 3 chambres, aire de vie conviviale et cuisine fonctionnelle. Situé dans un secteur paisible reconnu pour ses espaces verts et la proximité du fleuve, offrant un cadre de vie agréable pour les familles, les couples et les professionnels.
Offrez-vous un espace de vie confortable et pratique dans un secteur paisible et bien situé. Ce 5 ½ lumineux et fonctionnel est parfait pour une personne seule, un couple ou un étudiant à la recherche d'un logement bien placé et abordable.
*Caractéristiques*
- Trois chambres spacieuses
- Aire de vie conviviale et lumineuse
- Cuisine fonctionnelle avec rangement et comptoirs en quartz
- Salle de bain complète
*Localisation idéale* Un quartier familial et paisible, idéal pour ceux qui recherchent un environnement calme tout en restant près de tout. Situé à quelques minutes de l'autoroute 20, le secteur permet un accès facile à Vaudreuil, Valleyfield et Montréal. Vous y trouverez des écoles, garderies, parcs, pistes cyclables, commerces de proximité et services essentiels à courte distance.
Les Coteaux est reconnu pour son ambiance conviviale, ses espaces verts et la proximité du fleuve, offrant un cadre de vie agréable pour les familles, les couples et les professionnels.
*Avantages*
- Thermopompe de qualité supérieure pour une efficacité énergétique optimale et un confort accru
- Immeuble bien entretenu
- Quartier calme et agréable
Disponible dès maintenant!
Inclus : 2 stationnements extérieur, 1 rangement, thermopompe
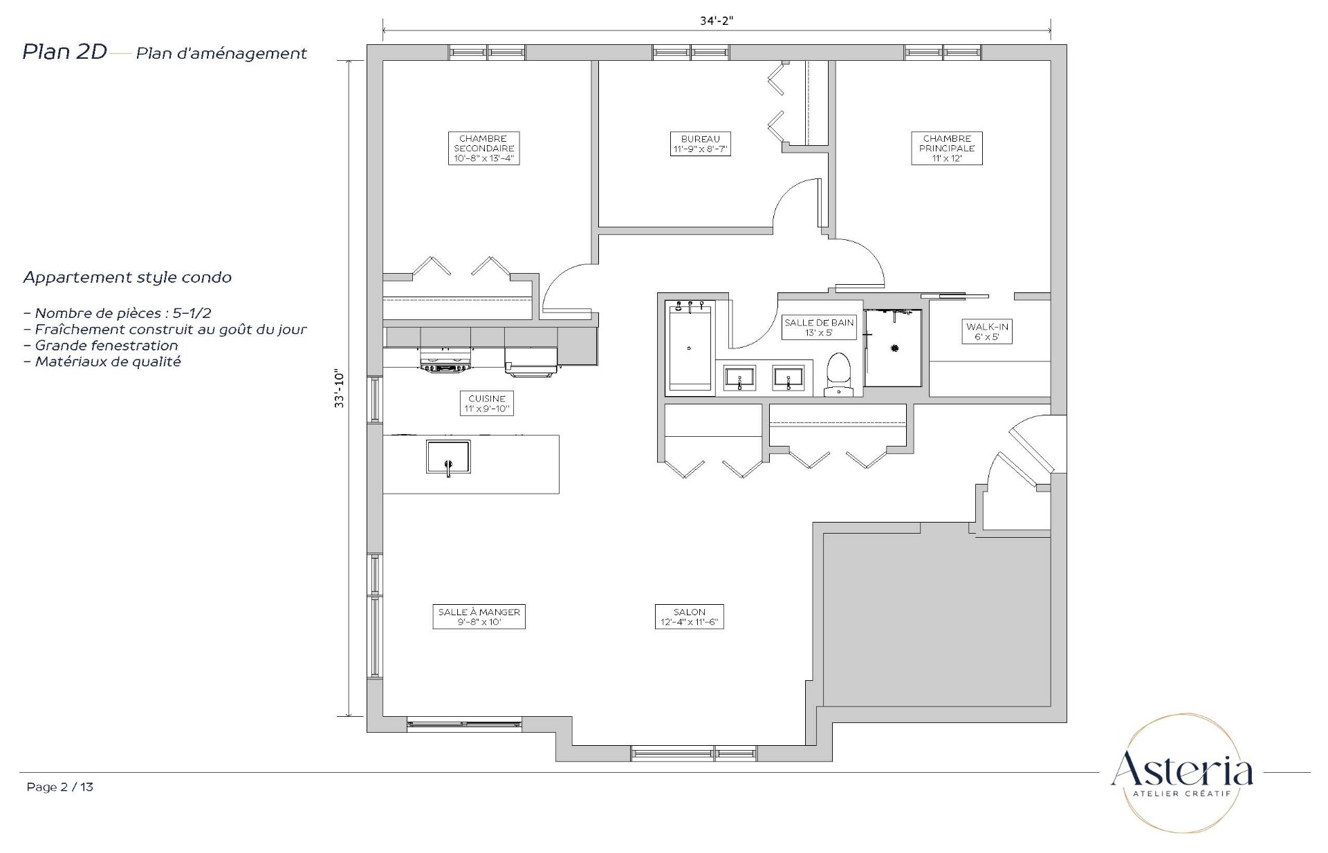
| Chambre | Dimensions | Niveau | Revêtement |
|---|---|---|---|
| Cuisine | 11.0 x 9.10 P | 3ième étage | Plancher flottant |
| Salle à manger | 17.8 x 10.0 P | 3ième étage | Plancher flottant |
| Salon | 12.4 x 11.6 P | 3ième étage | Plancher flottant |
| Salle de bains | 13.0 x 5.0 P | 3ième étage | Céramique |
| Chambre à coucher | 10.8 x 13.4 P | 3ième étage | Plancher flottant |
| Chambre à coucher | 11.9 x 8.7 P | 3ième étage | Plancher flottant |
| Chambre à coucher principale | 11.0 x 12.0 P | 3ième étage | Plancher flottant |
| Restrictions/Permissions | Animaux permis sous conditions |
|---|---|
| Facilité d'accès | Ascenseur |
| Proximité | Autoroute/Voie rapide, Cegep, École primaire, École secondaire, Garderie/CPE, Golf, Hôpital, Parc-espace vert, Piste cyclable, Transport en commun |
| Énergie pour le chauffage | Électricité |
| Système d'égouts | Municipal |
| Approvisionnement en eau | Municipalité |
| Mode de chauffage | Plinthes électriques |
| Zonage | Résidentiel |